全国免费服务热线
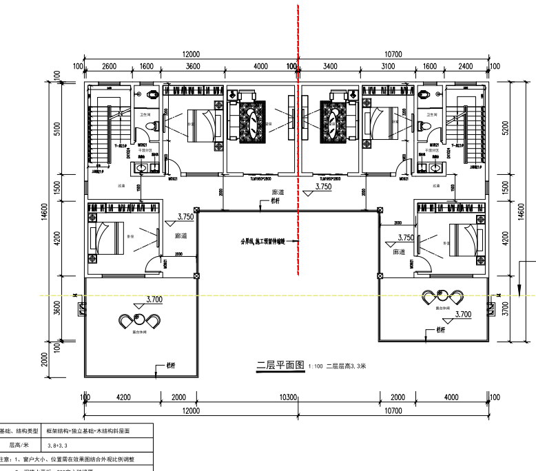
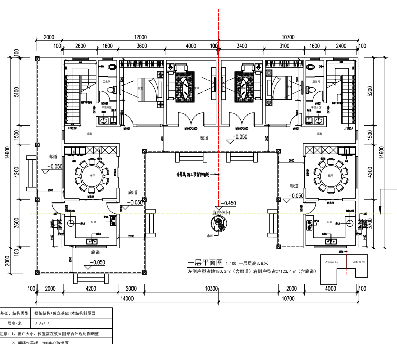
占地面积:303.7平米(双拼左180.3平米、右123.4平米) 占地尺寸:24.7MX14.6M 结构形式:砖混结构 建筑层数:2层 外墙装饰:水包砂、文化砖
占地面积:95平米
占地面积:162.5平米
占地面积:249.86平米
占地面积:90平米
渝公网安备 50010702503256号