13983775999

全国免费服务热线

C9

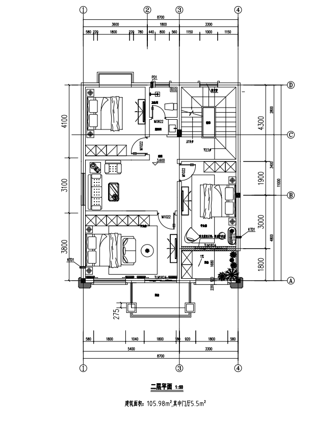
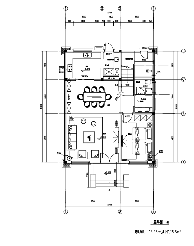
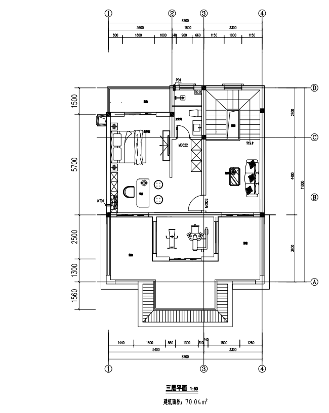
占地面积:105.98平米
占地尺寸:8.7MX11M
结构形式:砖混结构+现浇坡屋面
建筑层数:3层
外墙装饰:水包砂、文化砖等

详情介绍

首页
电话
留言反馈

渝公网安备 50010702503256号