近日,由重庆集创建设有限公司承接的北碚三圣周府两层乡村自建房项目完成全套施工图设计并正式交付业主,所有图纸均加盖专业设计报审图章,可直接用于报建及施工,标志着该项目正式进入落地准备阶段。
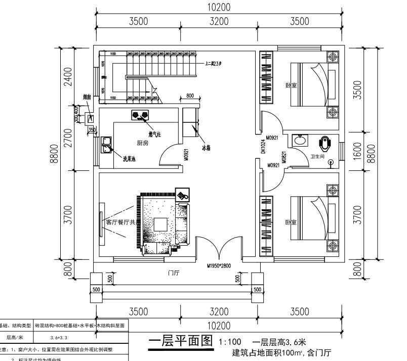
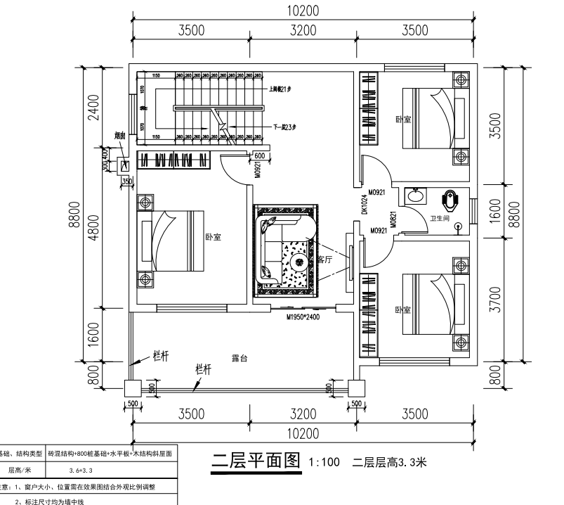
作为重庆农村自建房领域的专业设计服务方,重庆集创建设始终坚持基于实地勘测的定制化设计服务特色。本次周府项目前期,公司专业勘测团队携带GPS定位设备、无人机及全套专业测量工具前往北碚三圣项目现场,对地块地形、地质条件、周边环境进行了全方位精准勘测,结合三圣当地的地质特点与乡村居住习惯开展设计工作,确保设计方案既符合地块实际条件,又充分适配本地农户的生活需求。结合业主对田园风格居住空间的需求,本次设计的两层自建房占地100㎡,采用砖混结构搭配800桩基础、木结构斜屋面,兼具结构稳定性与乡村建筑的自然质感。外观采用米白色搭配深灰色屋檐与窗框,整体造型简约大气,既保留了乡村住宅的舒展感,又融入了现代简约的审美取向,与三圣当地的自然田园环境完美融合。

户型布局充分考虑业主家庭的居住习惯,一层采用3.6米层高设计,进门为开阔的客餐厅一体化空间,满足家庭聚会、接待亲友的需求;北侧配备独立厨房,操作动线流畅;东侧设置两间次卧,可作为老人房或客房使用,搭配独立公卫,实现动静分区、生活便利。二层采用3.3米层高设计,设置三间卧室,其中主卧配备独立起居空间,充分保障居住私密性;南侧外接大面积露台,可作为休闲观景、晾晒的多功能空间,完美契合乡村生活的多元需求。


作为深耕重庆乡村自建房设计领域的专业团队,重庆集创建设拥有多年乡村建筑设计经验与专业设计资质,本次为周府提供的服务范围明确包含前期地质勘测、建筑方案设计、全套施工图设计及报审盖章服务。本次交付的全套施工图包含建筑、结构、水电等全套专业图纸,所有内容均由具备专业设计资质的团队完成,加盖正规报审图章,符合重庆乡村自建房报审规范要求,具备合规报审资质,业主可直接提交相关部门办理建设手续,也可作为后续施工的权威依据,确保施工过程规范有序。

重庆集创建设提供农村自建房设计施工一站式服务,涵盖方案设计、施工图绘制到施工建设全流程。针对合作客户推出优惠政策:选择公司施工服务的,前期设计费可全额抵扣工程款,切实降低业主建房成本。有自建房需求的朋友可随时联系预约,现场考察施工工艺、建成效果,全方位了解一站式建房服务的优势。
提示: 如需进一步了解集创建设的农村自建房全包服务细节,可关注我们的抖音@集创别墅设计施工,查看后续施工以及更多项目还有施工知识。

