近日,重庆集创建设有限公司承接的广安周府农村自建房项目完成全案规划设计工作,即将进入包工包料施工阶段。针对该项目业主已完成基础施工的特殊情况,公司设计团队对原有基础参数进行了全面复核测量,量身定制出完整的三层新中式别墅设计方案,确保设计完全适配现有基础条件,避免后续施工出现衔接问题。

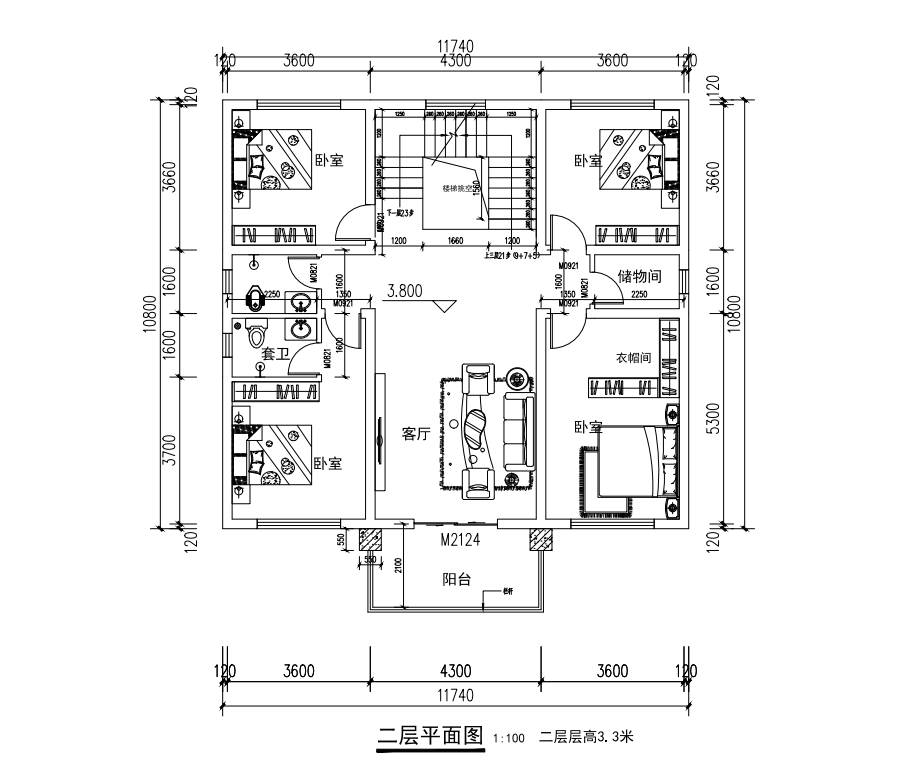
本次完成的设计方案包含一至三层全套施工图纸,一层规划有两间卧室、双卫生间及客餐厨公共空间,二层设置四间卧室搭配衣帽间与套卫,三层配备休闲区与大面积露台,整体功能布局充分匹配业主家庭居住需求,外观采用当下流行的新宋式风格,简约大气兼具实用性,效果图获得业主的高度认可。



作为专注于农村自建房领域的专业服务商,重庆集创建设有限公司提供设计施工一站式全链条服务,核心优势在于实现设计与施工的无缝衔接。针对本项目已完成基础的特殊情况,设计团队与施工团队提前开展联合交底,所有设计细节均同步落实到施工方案中,彻底避免“设计施工两张皮”问题,后续施工将严格按照设计图纸执行,所有材料全透明公示,真正做到全程无偷工减料、施工过程全透明。

项目后续将由重庆集创包工包料全程承建,施工过程将定期向业主同步进度,每道工序验收合格后方可进入下一阶段。目前公司已在川渝多地完成数十套自建房项目交付,所有在建及完工项目均开放实地参观通道,有自建房需求的业主可随时预约考察,直观了解一站式建房服务的全流程标准。
提示: 如需进一步了解集创建设的农村自建房全包服务细节,可关注我们的抖音@集创别墅设计施工,查看后续施工以及更多项目还有施工知识。

