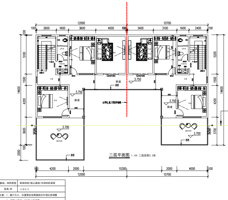
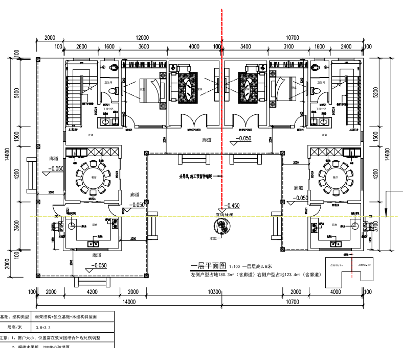
近日,重庆大足万古何府农村自建房项目完成实地勘察与平面布局设计工作,标志着这栋备受关注的双拼三合院正式进入落地筹备阶段。作为重庆集创建设的又一乡建代表作,项目既保留了传统合院的完整外观形制,又采用双户独立入户设计,完美平衡了家族聚居的情感需求与小家庭的独立居住隐私,获得业主团队的高度认可。

结合实地勘测和业主需求设计方案,该别墅外观暂定为两层中式三合院,采用框架结构+独立基础+木结构斜屋面设计,一层层高3.8米,二层层高3.3米,主体干墙体厚度达200mm,兼具结构安全性与居住舒适性。两户报建面积分别为120㎡与90㎡,每户均配置独立厨房、餐厅、卧室及干湿分离卫生间,中间共享中式庭院区域,功能分区清晰,居住动线流畅,真正实现了“独门独户不疏离,合院聚居有温度”的设计理念。

我公司作为深耕农村自建房领域的专业服务商,重庆集创建设始终坚持“设计施工不脱钩”的一站式服务模式,从前期实地勘测、方案定制到后期施工落地,全程由同一专业团队跟进,彻底解决了传统乡建领域“设计图好看但施工落不了地”的痛点,真正做到“按图建房,效果1:1还原”。针对近期有建房需求的业主,重庆集创建设推出重磅惠民活动:凡是选择由公司承接施工的项目,前期支付的设计费将全额抵扣建房款,实实在在为农户减轻建房负担,让更多家庭能建得起、住得上高品质的理想乡居。
提示: 如需进一步了解集创建设的农村自建房全包服务细节,可关注我们的抖音@集创别墅设计施工,查看后续施工以及更多项目还有施工知识。

